18噸叉裝車 FDM756T-18
品牌: 福大
- 叉裝機型號:FDM756T-18
- 叉裝機載荷:18噸 (1500mm)
- 叉裝機自重:21噸
- 產品描述:18噸叉裝車FDM756T-18主要用在花崗巖石材礦山,對花崗巖石材荒料裝卸車、搬運作業。
- 在線洽談
產品介紹
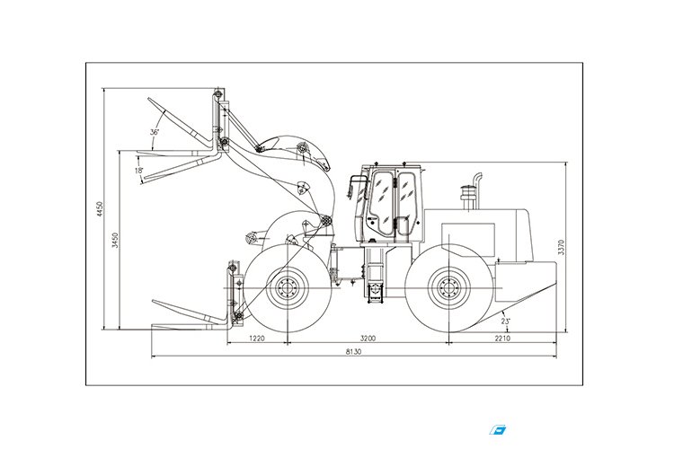
18噸石材叉裝車技術參數
叉裝車型號:FDM756T-18
額定起重量:18噸 (舉升1500mm)
最大起重量:20噸 (舉升200mm)
整機操作質量:20.5噸
行駛速度:0-35km/h
轉向角:30°
軸距:3200+15mm
最大爬坡能力:≧22°
整機外形尺寸(長、寬、高):8130*2960*3370(mm)
發動機型號: 杭發D10.22T21
發動機額定功率:162KW
輪胎規格:4*23.5-25-24PR
液力變矩器: 單級四元件行星式
提升時間:7.3s
三項和:12s
燃油箱容量:220L
液壓油箱容量:200L
18噸石材叉裝車特點
采用雙搖臂六連桿結構,可叉裝物料達18噸。
功率強大的六缸四沖程渦輪增壓發動機,燃料效率高。
美觀大方的流線型外觀設計,以及新型密封駕駛室提供了舒適的操作環境,可選裝配冷暖空調。
四輪雙管路盤式制動,安全可靠
雙渦輪液力變矩器,可減少檔位,方便操作。
多種工作裝置及鏟斗可提供選擇以滿足不同用戶的需求。
可選裝輪胎保護鏈,適用石材礦山惡劣作業環境。

本樣本所有圖片僅供參考,福大機械保留修改相應參數及配置的權利,如有變更,恕不另行通知。
- 相關動態:
